Commercial

Rushfield Lakes

Rushfield Lakes, Potterhanworth, Lincolnshire, United Kingdom



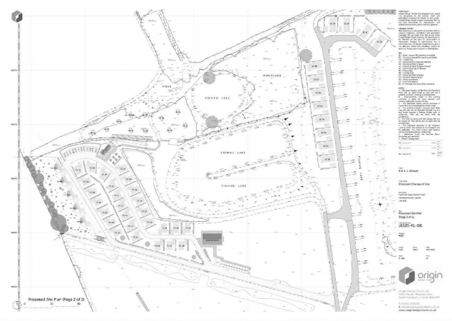
Origin Design Studio were approached to help with the developemnt of Rushfield lakes into Hanworth Country Park. Currently the site boasts several fishing lakes with casual and occasionally competative fishing events. Our breif was to preapre designs and a planning application to allow residency of touring caravans, static caravans, hobbit huts and shepherd huts in the woodland.

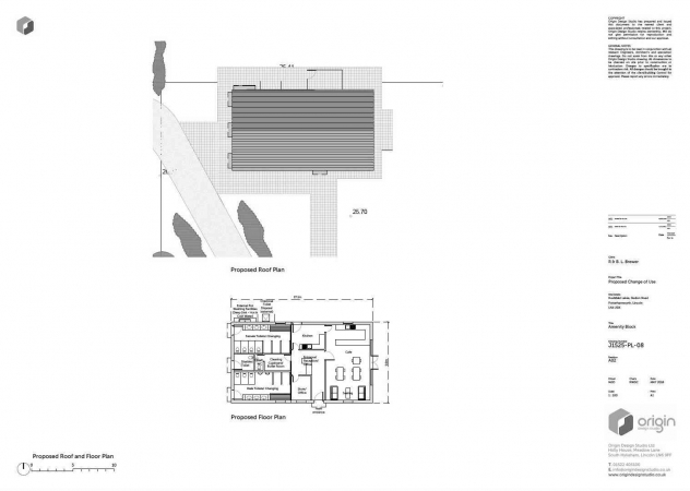
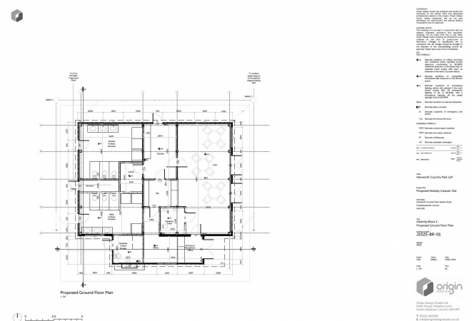
Our first task was to prepare a Masterplanning scheme denoting the areas for each type of accomodation. Research into the spaces required created the forms and the arrangement was designed by ensuring access to water, sanitation, fire supression and seperation between plots. A small amenity block and reception building have also been designed to provide permanent structures to support the sites operation. Planning permission was approved by committee after a representation by Origin Design Studio to present the scheme and answer quetions about the development.

 

We were approached by a client to design a caravan and glamping site on the land around the exisitng fishing lakes in Potterhanworth. We were appointed to produce a set of plans demonstrating the site masterplan and the plans and elevations of the amenity blocks. Due the nature of this application it was called in to the Planning Committee to be decided by the elected councillors of the area. We were asked to provide the representation and explain the project to the committee. After succesffuly achieving planning permission we are now working with the client to discharge the precommencement conditions and provide detailed designs.

House Extensions
MORE
One Off Houses
MORE
Housing Developments
MORE
Conversions
MORE
Commercial
MORE